Central Cultural Fund
Dambulla
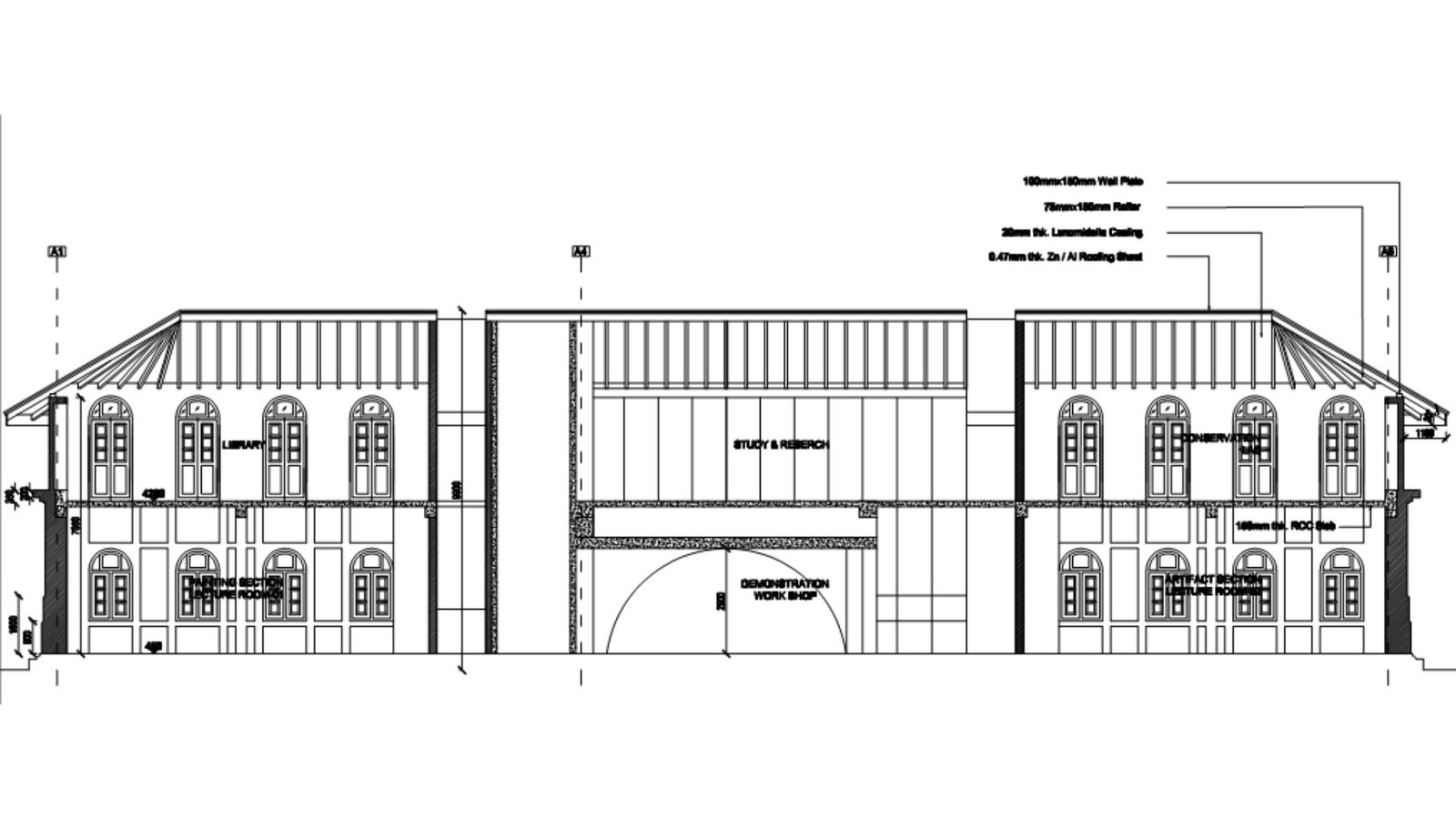
The project required the creation of a specialized training center for painting and artifact conservation, located in the culturally significant setting of Dambulla. The challenge was to design a state-of-the-art facility that supported modern conservation techniques while ensuring eco-friendly construction, seamless integration with the heritage context, and alignment with green building certification standards.
Eco Twin 14 developed a comprehensive architectural and engineering plan focused on sustainability and functionality. The design incorporated natural lighting, ventilation systems, and energy-efficient strategies, while ensuring optimal conditions for artifact preservation and conservation training. By integrating modern labs, training spaces, and eco-conscious materials, the center provides a sustainable learning environment that safeguards heritage while setting new benchmarks in conservation infrastructure.